Dom na sprzedaż Bieruń, Ściernie

5 pokoi
160.51 m²
4 354,87 zł/m2
NMX-DS-668
Oblicz ratę kredytu

699 000 zł

Dom na sprzedaż
Bez prowizji

Szczegóły oferty

vir_symbol_oferty NMX-DS-668
vir_oferta_powierzchnia 160,51 m²
vir_oferta_powierzchniauzytkowa 160,51 m²
vir_klientoferta_powierzchniadzialki 401 m²
vir_oferta_iloscpokoi 5
vir_oferta_rodzajdomu bliźniak
vir_oferta_standard
vir_oferta_garaz na dwa samochody
vir_oferta_okna nowe PCV
vir_oferta_instalacje nowe
vir_oferta_uksztaltowaniedzialki płaska
vir_oferta_ogrodzeniedzialki siatka w ramach
vir_oferta_taras taras
Pomieszczenia
vir_oferta_rodzajkuchni aneks kuchenny - połączony z jadalnią
vir_oferta_typlazienki razem z wc, z oknem
vir_oferta_ilosclazienek 2
vir_oferta_iloscwc 1
Piotr Nazim

Piotr Nazim


Nr licencji: 22106

Napisz wiadomość 16 Ofert

Opis nieruchomości

Na sprzedaż dom w zabudowie bliźniaczej w Bieruniu dzielnica Ściernie. 


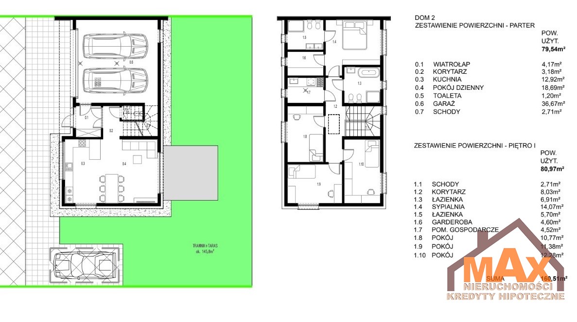
Powierzchnia działki: 401 m2

Powierzchnia użytkowa: 160,51m2


Układ pomieszczeń:

PARTER:


- Wiatrołap - 4,17 m2

- Korytarz - 3,18 m2

- Kuchnia - 12,92 m2

- Pokój dzienny - 18,69 m2


- Toaleta - 1,20 m2

- Garaż - 36,67 m2

- Schody - 2,71 m2


PIĘTRO:

- Schody - 2,71 m2

- Korytarz - 8,03 m2

- Łazienka - 6,91 m2

- Sypialnia - 14,07 m2

- Łazienka - 5,70 m2

- Garderoba - 4,60 m2

- Pomieszczenie gospodarcze - 4,52 m2

- Pokój - 10,77 m2

- Pokój - 11,38 m2

- Pokój - 12,28 m2


Dom oddawany w stanie surowym zamkniętym.


Standard wykończenia:


- dom wybudowany  techniką tradycyjną murowaną

- ściany pustak ceramiczny

- płyta fundamentowe

- ocieplenie budynku styropian + wykonanie elewacji w tynku,

- dach pokryty blachą

- działka ogrodzona 

- podjazd z kostki brukowej

- stolarka okienna PCV

- rolety elektryczne w oknach

- drzwi zewnętrzne

- schody wylewane 


Media: prąd, woda, kanalizacja sanitarna miejska. 


Zalety:

- cicha i spokojna okolica 

- brak skosów w pomieszczeniach

- wybrukowane podjazdy

- dojazd do posesji bezpośrednio z drogi publicznej asfaltowej 

- blisko: szkoła, przedszkole, sklepy, usługi, kościół

- szybki dojazd do trasy Tychy- Oświęcim, Katowice - Bielsko



Kupujący zwolniony z podatku PCC 2%.



 

Lokalizacja nieruchomości

Kalkulatory

Kalkulator kredytowy

Wysokość raty

PLN
%

Kalkulator kosztów

Taksa notarialna
(opłata notarialna)

Wniosek o wpis do KW

VAT od prowizji
agencji nieruchomości

VAT od taksy notarialnej
(opłaty notarialnej)

Prowizja agencji nieruchomości

Wypisy aktu notarialnego

Razem

Uwaga: mogą wystąpić dodatkowe opłaty za założenie księgi wieczystej oraz ustanowienie hipoteki.

PLN
PLN
PLN
PLN
PLN
%
PLN

Proszę wprowadzić poprawne imię i nazwisko
Proszę wprowadzić poprawny numer telefonu
Proszę wprowadzić poprawny adres e-mail
Proszę zaznaczyć wymagane zgody
Rozwiąż równanie:
19 9
Niepoprawny wynik