Dom na sprzedaż Tychy, Zawiść

5 pokoi
101.79 m²
7 515,47 zł/m2
NMX-DS-640
Oblicz ratę kredytu

765 000 zł

Dom na sprzedaż
Bez prowizji

Szczegóły oferty

vir_symbol_oferty NMX-DS-640
vir_oferta_powierzchnia 101,79 m²
vir_oferta_powierzchniauzytkowa 101,79 m²
vir_klientoferta_powierzchniadzialki 100 m²
vir_oferta_iloscpokoi 5
vir_oferta_rodzajdomu szereg środkowy
vir_oferta_garaz brak
vir_oferta_okna nowe PCV
vir_oferta_instalacje nowe
vir_oferta_balkon brak
vir_oferta_stanbudynku do wykończenia
Piotr Nazim

Piotr Nazim


Nr licencji: 22106

Napisz wiadomość 16 Ofert

Opis nieruchomości

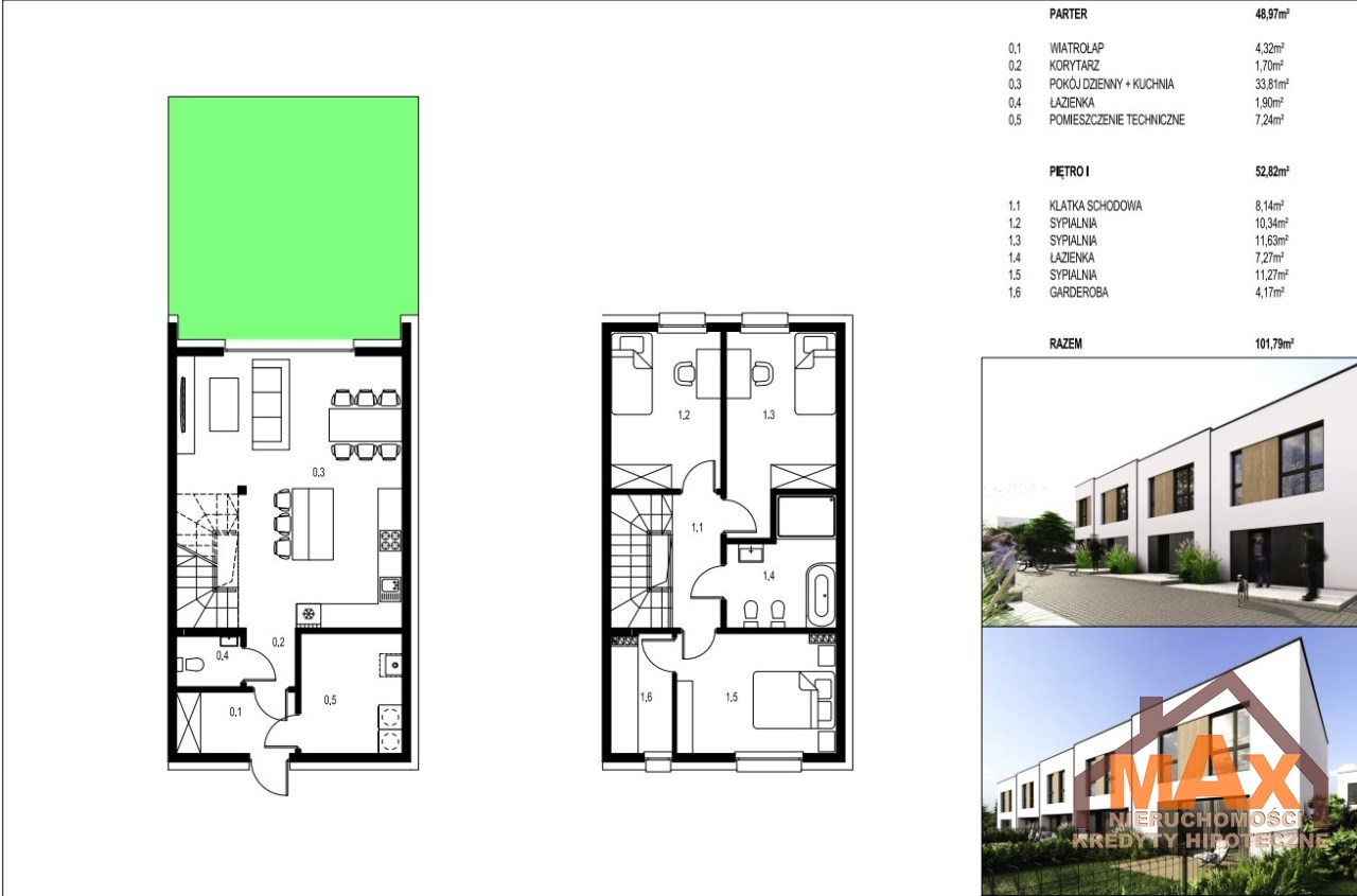
Na sprzedaż domy w zabudowie szeregowej o powierzchni 101,79 m2 piętrowy z dachem płaskim zlokalizowany w Tychach dzielnica Zawiść.
 
Układ pomieszczeń:

Parter:

- salon z aneksem kuchennym (33,81 m2)

- wc (1,90 m2)

- wiatrołap (4,32 m2)

- korytarz (1,70 m2)

- pomieszczenie techniczne (7,24 m2)


Piętro:

- pokój (10,34 m2)

- pokój (11,63 m2)

- pokój (11,27 m2)

- garderoba (4,17 m2)

- łazienka (7,24 m2)

- klatka schodowa (8,14 m2)

Standard wykończenia:

Dom wybudowany metodą tradycyjną murowaną z pustaka ceramicznego.  Budynek ocieplony wraz z stolarką okienną i drzwiową. W budynku przewidziano ogrzewanie podłogowe zasilane pompą ciepła.

Nieruchomość sprzedawana w stanie deweloperskim:

- ogrzewanie podłogowe w całym domu

- okna 3 szybowe  

- pompa ciepła

- na ścianach tynki 

- na podłogach wylewki

- budynek ocieplony z elewacją zewnętrzną


Lokalizacja:

- atrakcyjne lokalizacja cicha i spokojna okolica, kameralna inwestycja

- dobry dojazd do centrum,

- rozbudowana infrastruktura: żłobek, przedszkole, centrum handlowe,      supermarket, kino, ścieżki rowerowe, stacje paliw

Zalety:

- duże, przestronne wnętrza, funkcjonalny układ pomieszczeń

- niezależne wejścia i układy komunikacyjne

- ogrodzone ogródki

- dostęp do wszystkich mediów: woda, kanalizacja, prąd, pompa ciepła

- miejsce postojowe przynależne dla każdego budynku

- mieszkania bezczynszowe, niskie koszty eksploatacji

Do ceny należy doliczyć dwa miejsca parkingowe w cenie 24.000 zł.

 
KUPUJĄCU NIE PŁACI PROWIZJI ORAZ PODATKU PCC 2%

Lokalizacja nieruchomości

Kalkulatory

Kalkulator kredytowy

Wysokość raty

PLN
%

Kalkulator kosztów

Taksa notarialna
(opłata notarialna)

Wniosek o wpis do KW

VAT od prowizji
agencji nieruchomości

VAT od taksy notarialnej
(opłaty notarialnej)

Prowizja agencji nieruchomości

Wypisy aktu notarialnego

Razem

Uwaga: mogą wystąpić dodatkowe opłaty za założenie księgi wieczystej oraz ustanowienie hipoteki.

PLN
PLN
PLN
PLN
PLN
%
PLN

Podobne oferty

Bez prowizji

Dom na sprzedaż

Tychy, Zawiść

3 pokoje 63 m2 9 631,50 zł/m2
Bez prowizji

Proszę wprowadzić poprawne imię i nazwisko
Proszę wprowadzić poprawny numer telefonu
Proszę wprowadzić poprawny adres e-mail
Proszę zaznaczyć wymagane zgody
Rozwiąż równanie:
21 8
Niepoprawny wynik